TRÄNINGSREDSKAP 16
Artikelnummer: IP- KS-SW-34
Material
Metall: Galvaniserat stål, Pulverlackerat stål, Rostfritt stål
Åldersgrupp
6+
Lekvärde
Balans
Produktinformation
Träningsställning avsett för tonåringar och vuxna, bestående av 3 stänger fixerade på olika höjder. Strukturen är gjord av galvaniserat och pulverlackerat stål. Träning på redskapet stärker musklerna i bröst, rygg, armar, axlar och mage. Träning på det förbättrar balanskänslan och motorisk koordination.
| Material | Galvaniserat stål, Pulverlackerat stål, Rostfritt stål |
|---|---|
| Åldersgrupp filter | 12+, 16+, 20+, Senior |
| Lekvärde | Balans |
| Fallunderlag | Under 150cm |
| Åldersgrupp | 6+ |
| Brand | CADO STÅL, Interplay |
Produktdetaljer:
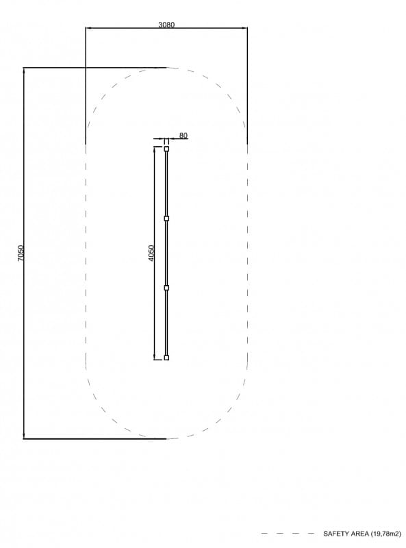
Dimensioner (L x B x H): 4,05 x 0,08 x 2,50 m
Säkerhetsområde(L x B): 7,05 x 3,08 m
Fri fallhöjd 1,40 m
Höjd på barsen: 2,40 m
Användarens maximala vikt: 150 kg
Material:
Galvaniserat och pulverlackerat stål – redskapen är målade i grön (RAL 6013) och grå (RAL 9006). På begäran kan andra RAL-färger användas.
Konstruktionsstolpar med kvadratisk profil 80×80 mm (tjocklek 3 mm),
Skruvar täckta av plasthattar.
Lignende produkter
-
Läs mer
-
Läs merArtikelnummer: IP-CT-IN-02Pris: Läs mer
-
Läs mer
-
Läs mer
-
Läs mer
-
Läs mer
Tvådelad båt med sandlek









